Appartement
CH-8732 Neuhaus SG, Chastelstrasse 6b
| Loyer | CHF 2'510.-/mois |
| Charges | CHF 240.-/mois |
| Total | CHF 2'750.-/mois |
Descriptif
Commodités
Environnement
○ Village
○ Verdoyant
○ Arrêt de bus
○ Entrée/sortie autoroute
Extérieur
○ Balcon(s)
Intérieur
○ Accès pour handicapés
○ Ascenseur
○ Parking souterrain
○ Cuisine ouverte
○ Economat
○ Cave
○ Armoires encastrées
○ Lumineux
○ Lumière naturelle
○ Animaux non autorisés
Equipement
○ Cuisine équipée
○ Cuisinière
○ Plaques vitrocéramiques
○ Four
○ Réfrigérateur
○ Congélateur
○ Lave-vaisselle
○ Interphone
○ Eclairage extérieur
Sol
○ Carrelage
Etat
○ Neuf
Style
○ Moderne
Caractéristiques
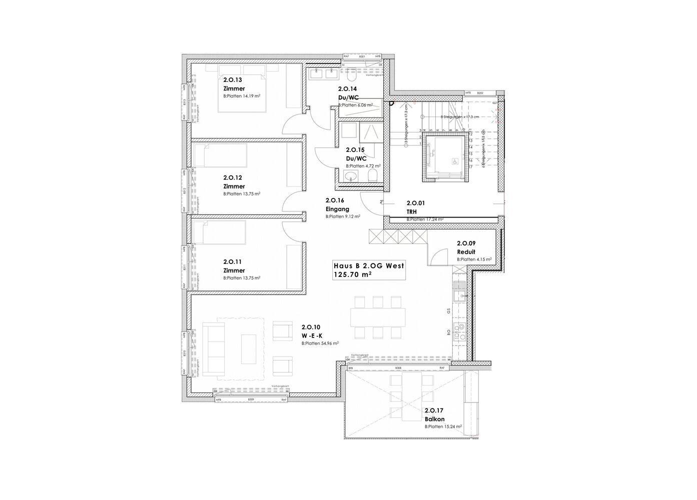
Catégorie
Appartement
Référence
783
Niveau
2ème étage
Nombre de pièce(s)
4.5
Nombre de chambre(s)
3
Surface habitable
125 m²
Année de construct.
2025
Disponibilité
A convenir
Charges
Forfait (CHF 240.-/mois)
















