Hinweis: Die gezeigte Wohnung auf den Fotos ist eine nahezu baugleiche Wohnung die angeboten wird.
Zudem könnte die Wohnung auch schon früher übernommen werden, in Absprache mit dem jetzigen Mieter.
Mit der Liegenschaft „Botenrainstrasse 4“ entstanden 2020 moderne Wohnräume mit dem gewissen Etwas für Paare, Familien oder Singles.
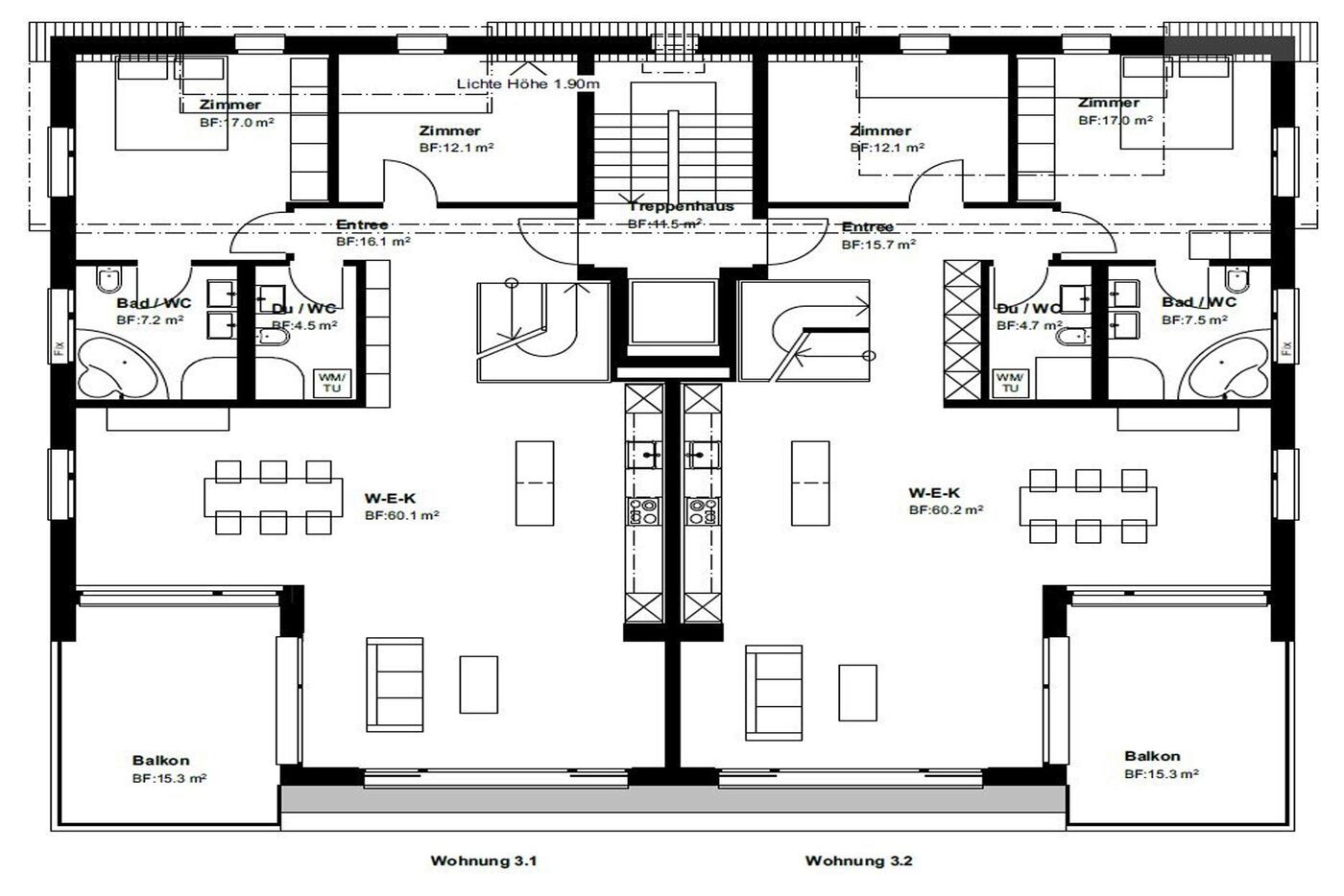
Die Liegenschaft zählt insgesamt 5 Mietwohnungen mit je 4.5 Zimmern, verteilt auf 3 Etagen. In allen Wohnungen fliessen Wohnen, Essen und Küche dank dem offenen Grundriss harmonisch ineinander.
Deckenhohe Fenster im Übergang zu den Balkons, schaffen eine helle und freundliche Raumatmosphäre. Zu jeder Wohnung gehört zudem ein Waschturm, welcher im Gästebad seinen Platz gefunden hat.
Die Krone der Liegenschaft bilden die beiden sehr grossen Maisonettewohnungen mit je gut 196 m2 Bruttofläche.
Im oberen Zimmer können Sie Ihrer Kreativität freien Lauf lassen. Ob als Atelier, Büro oder Hobbyzimmer, fast alles ist möglich auf ca. 74 m2.
Die grundsolide Bauweise mit modernster Ausstattung verspricht Ihnen hochstehenden Wohnkomfort und Qualität im schönen St. Gallenkappel.
WOHNEN + ESSEN
Böden aus Keramikplatten «Eiche Natur», helle Räumlichkeiten dank den optimal positionierten Fenstereinheiten (Doppelverglasung), Zugang zum Balkon
KÜCHE
Optik in Weiss, Ablagen aus Kunststein, Rückwandabdeckungen aus Glas, Boden aus Keramikplatten «Eiche Natur», Einbauleuchten, Umluftbackofen auf Arbeitshöhe, grosser Kühlschrank, Geschirrspüler, 4 Zonen Glaskeramikkochfeld
3 SCHLAFZIMMER - Eines davon Dachzimmer, ohne Türe
Böden ebenfalls aus Keramikplatten «Eiche Natur», ruhige Lage Dachgeschoss ein grosses Zimmer, ideal für individuelle Unterteilung
BADEZIMMER
1 Gästebad mit Dusche, WC, Lavabo und Spiegelkasten, Lüftung
1 Hauptbad mit bodenebener Dusche (sehr gross), WC, Lavabo und Spiegelkasten, Fenster
Die Wohnung Ost hat anstelle einer zweiten Dusche eine Sprudelbadewanne!
WASCHEN + TUMBLERN
Eigener Waschturm in der Wohnung
BALKON/TERRASSE
1 Balkon mit 15 m2
KELLER
Kein Kellerabteil, dafür ausreichend Platz im Obergeschoss der Wohnung
PARKEN
Optional überlanger Parkplatz (offen) Nr. 11 für CHF 80.-/Mt.
Optional gedeckter Parkplatz Nr. 9 für CHF 80.-/Mt.
TECHNISCHE INSTALLATIONEN
Heizung: Wärmeerzeugung mittels Erdsondenwärmepumpe, Bodenheizung
Storen: Elektrisch bedienbar
HAUSTIERE
Hunde und Katzen auf Rücksprache
Haben Sie Fragen oder wünschen Sie eine Besichtigung? Gerne stehen wir Ihnen zur Verfügung und freuen uns auf Ihre Kontaktaufnahme.















